Carlisle Campus Planning

Carlisle Campus Planning

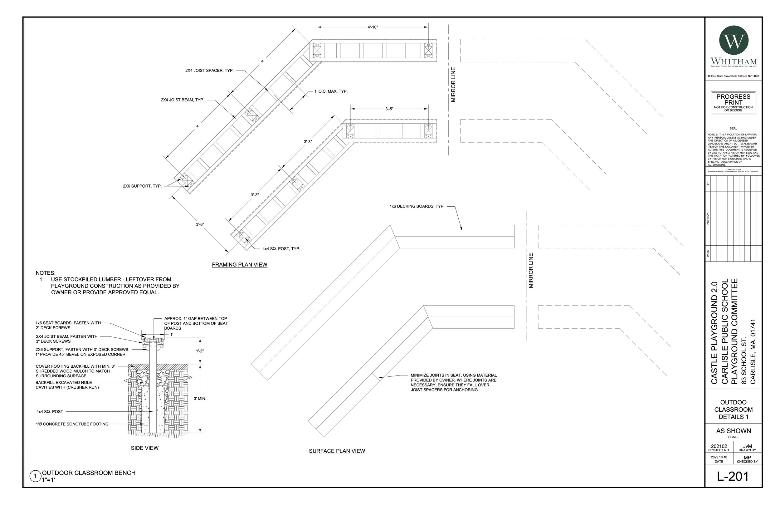
Working collaboratively with Play By Design and the Carlisle Parent Teacher Organization in Carlisle, Massachusetts, WPD provided detailed grading and master planning services for the Carlisle Elementary School’s new ADA-accessible playground and outdoor classroom gathering space consisting of a platform, child- sized benches, and picnic tables.

Details of the landscape architecture grading plan prioritized minimizing site disturbance and tree loss while maximizing ADA accessibility. We assessed play equipment access and accessible routes throughout the site and tested the grading to ensure the feasibility of the ADA-access design.

Master plan site design services included locating the new 12,000 square-foot playground, providing the new outdoor amphitheater classroom design, drafting routes for the access walkways, and relocating the donor brick plaza in alignment with the Historic Commission’s quality standards.